5 Kenwood St # 2
- $689,000
Description
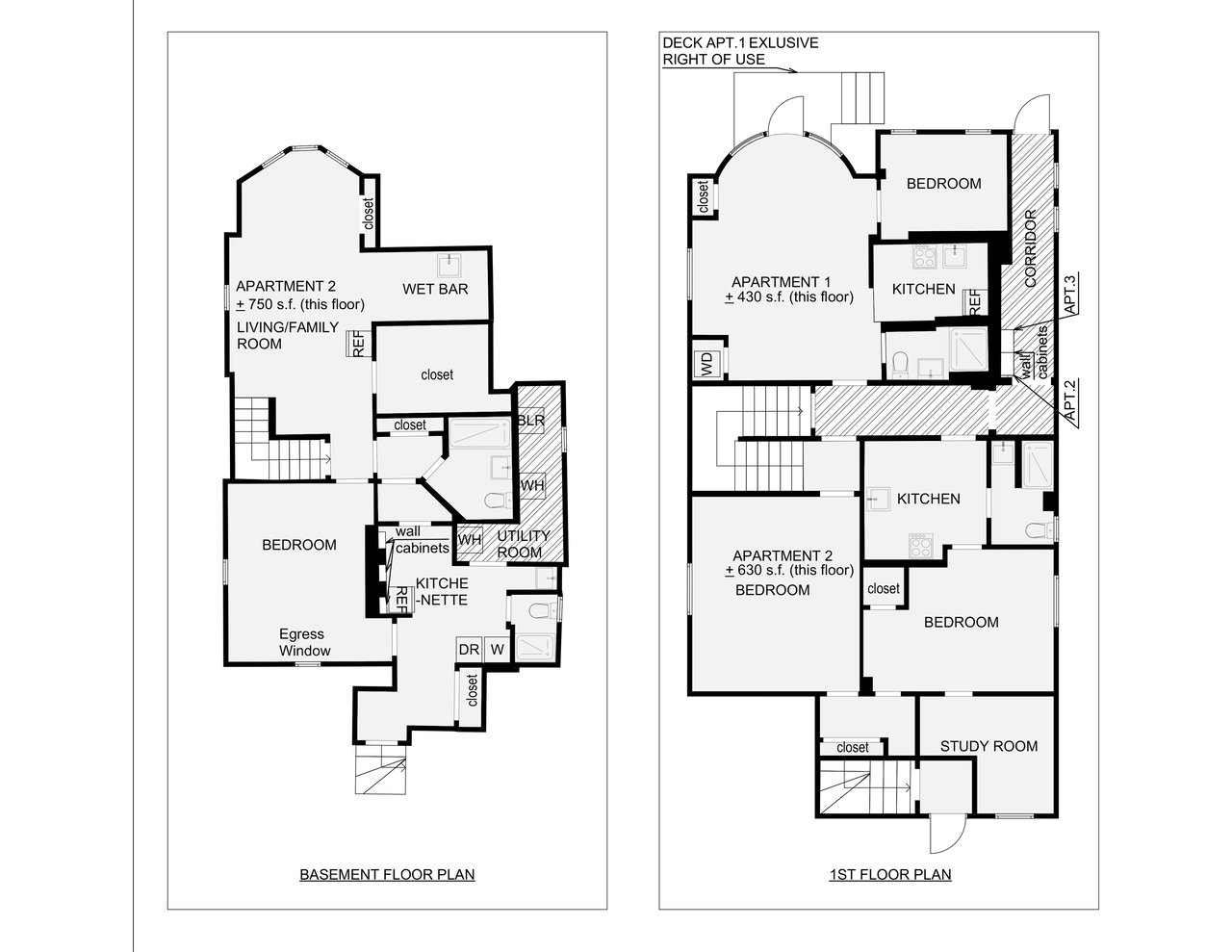
2-level 3 bedroom/3 bathroom condo on the 1st and lower finished level of 3-family house located just a 6-minute walk to iconic Davis Square, 9 minutes to Ball Square Green Line! New hardwood floors, in-unit laundry. In 2025, the entire building was upgraded with new HardiePlank siding and a sleek, durable metal roof. Private entrance, officially deleaded, located on a quiet tree-lined street near a lovely park. 2 off-street parking spaces. Low condo fee of $221/month. Enjoy unbeatable access and an easy commute to major universities, hospitals, attractions, Government Center, and downtown Boston. A rare, move-in-ready opportunity in a top transit-connected neighborhood. Ideal for an owner occupant with potential for in-law setup or an investor who’s looking for a stable rental income. Can be purchased together with the 2nd floor 4 bed/3 bath unit which will allow to further expand the options to a multi-generational living or an additional rental income opportunity.
Address
Open on Google Maps-
Address: 5 Kenwood St # 2
-
City: Somerville
-
State/county: MA
-
Zip/Postal Code: 02144
Details
-
Price $689,000
-
Property Size 1311 sqft
-
Bedrooms 3
-
Bathrooms 3
-
Property Type Condo
-
Property Status For Sale
-
Off-Street Parking 2











